Bürofläche in zentraler Lage mit ca. 167 m² in Hamburg – modern, flexibel und lichtdurchflutet

22457 Hamburg
Objekt-ID: G-M-HH-25-001-3
2.002 €Kaltmiete

Bürohaus zur Miete

Zur Miete
ca. 1.670 m²Grundstück
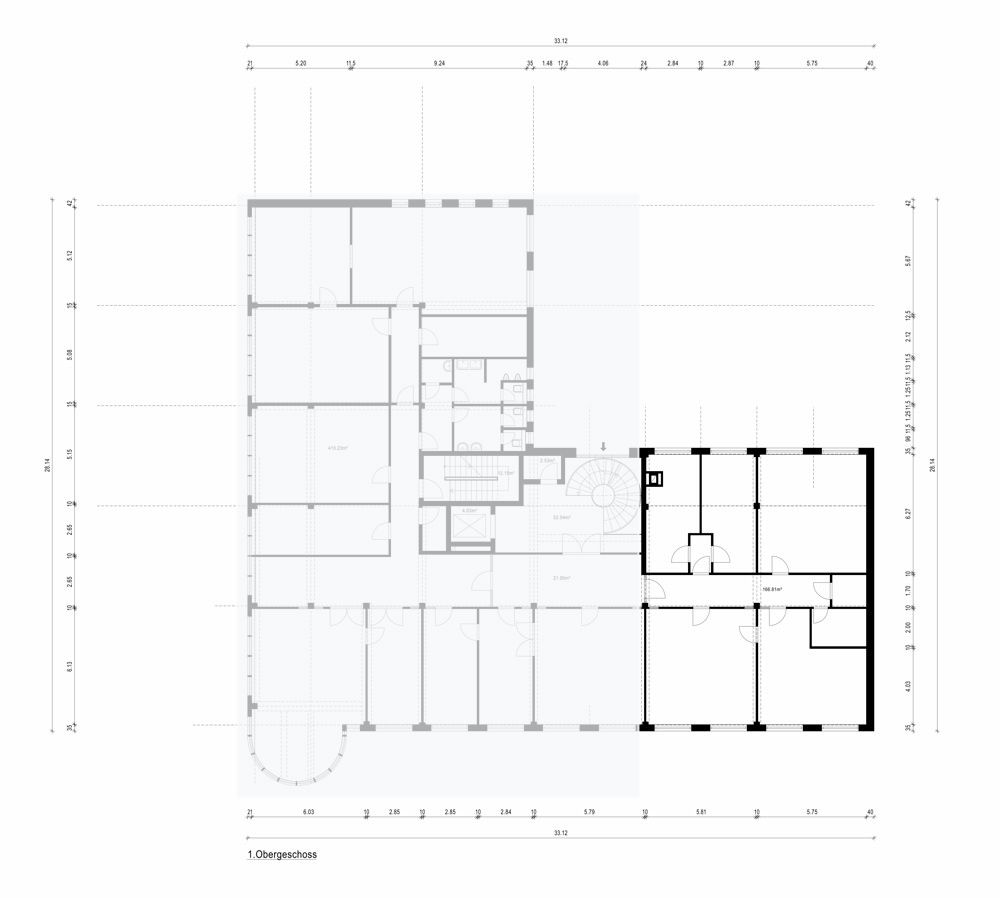
ca. 166,8 m²Bürofläche
1995Baujahr

Preise

Kaltmiete2.002 €

Mieterprovision: 1,19 Nettokaltmieten inkl. MwSt.

Miete pro m²12 €
Nebenkosten535 €

Flächen

Büroflächeca. 166,8 m²
Grundstücksflächeca. 1.670 m²
vermietbare Flächeca. 166,8 m²

Zustand und Bauart

Baujahr1995
Unterkellert

Räume, Flure und Etagen

Etage1

Beschreibung

Diese großzügige Bürofläche im 1. Obergeschoss eines im Jahr 1995 errichteten Büro- und Gewerbegebäudes besticht durch ihre moderne Architektur, eine repräsentative Erscheinung sowie einen sehr gepflegten Gesamtzustand. Auf rund 167 m² bietet sie vielseitig nutzbare Bürostrukturen, die Funktionalität und Qualität in einem professionellen Arbeitsumfeld vereinen. Die variable Grundrissgestaltung ermöglicht eine flexible Aufteilung von klassischen Einzelbüros bis hin zu offenen Arbeitswelten.

Großzügige Fensterfronten sorgen für helle, freundliche Arbeitsbereiche und ein angenehmes Raumgefühl. Die Fläche befindet sich leerstehend und bezugsfertig und bietet damit eine ideale Grundlage für individuelle Gestaltungskonzepte. Zur baulichen Ausstattung zählen eine moderne IT-Verkabelung, energieeffiziente Beleuchtung sowie gepflegte Sanitärbereiche.

Ein besonderes Highlight stellt die hausinterne Betriebskantine im 2. Obergeschoss dar. Sie ist modern ausgestattet und bietet den Mietern eine komfortable Möglichkeit zur täglichen Verpflegung direkt im Haus. Zudem eignet sie sich hervorragend für Team-Meetings, Workshops oder interne Veranstaltungen.

Das Gebäude ist voll unterkellert und verfügt über eine Tiefgarage mit direktem Zugang, die komfortable Stellplätze für Mitarbeiter und Besucher bietet. Zusätzlich stehen Außenstellplätze auf dem Grundstück zur Verfügung. Das ca. 1.670 m² große Grundstück ist vollständig erschlossen und überzeugt durch gepflegte Grünflächen sowie einen repräsentativen Eingangsbereich, der den professionellen Gesamteindruck unterstreicht.

Die technische Gebäudeausstattung befindet sich in einem sehr guten Zustand. Heizungs-, Elektro- und Sicherheitstechnik entsprechen einem modernen Standard und gewährleisten einen effizienten und zuverlässigen Betrieb.

Kontaktieren Sie uns gern für weitere Informationen oder zur Vereinbarung eines Besichtigungstermins.

Lage

Der Standort befindet sich in einer etablierten Gewerbelage im Hamburger Nordwesten mit hervorragender Verkehrsanbindung und einem attraktiven Umfeld.

Die Autobahn A7 ist in wenigen Minuten erreichbar, ebenso wie der Flughafen Hamburg, der nur rund 10–15 Minuten entfernt liegt. Eine Bushaltestelle direkt vor dem Gebäude sorgt für eine schnelle Anbindung an den öffentlichen Nahverkehr. Die Hamburger Innenstadt ist in etwa 20 Minuten erreichbar.

Das Umfeld bietet eine vielfältige Nahversorgung mit Restaurants, Cafés, Supermärkten, Banken und Dienstleistern in unmittelbarer Nähe. Grünflächen und Naherholungsgebiete sorgen zudem für ein angenehmes Arbeitsumfeld.

Die Nähe zu wichtigen Wirtschaftsstandorten wie Eimsbüttel, Stellingen und Altona sowie zu bekannten Einrichtungen wie dem Volksparkstadion und der Barclays Arena rundet die exzellente Standortqualität ab.

Der Standort kombiniert Sichtbarkeit, Erreichbarkeit und Repräsentanz auf ideale Weise. Perfekt für Unternehmen, die eine hochwertige Bürofläche in strategisch guter Lage suchen.

Sonstiges

Alle Angaben sind ohne Gewähr und basieren ausschließlich auf Informationen, die uns von unserem Auftraggeber übermittelt wurden. Wir übernehmen keine Gewähr für die Vollständigkeit, Richtigkeit und Aktualität dieser Angaben. Zwischenverkauf vorbehalten.

Objektanfrage

Dateien und Anhänge

PDF Exposé herunterladen